咨詢熱線15665879292
pp噴淋塔由PP板制作而成,由于PP耐腐蝕,抗酸堿,并且相對造成較低,故廣泛應用在酸堿廢氣治理行業、涂裝行業的廢氣治理中,本文由佑泰環保小編為您介紹pp噴淋塔相關知識。 一、pp...

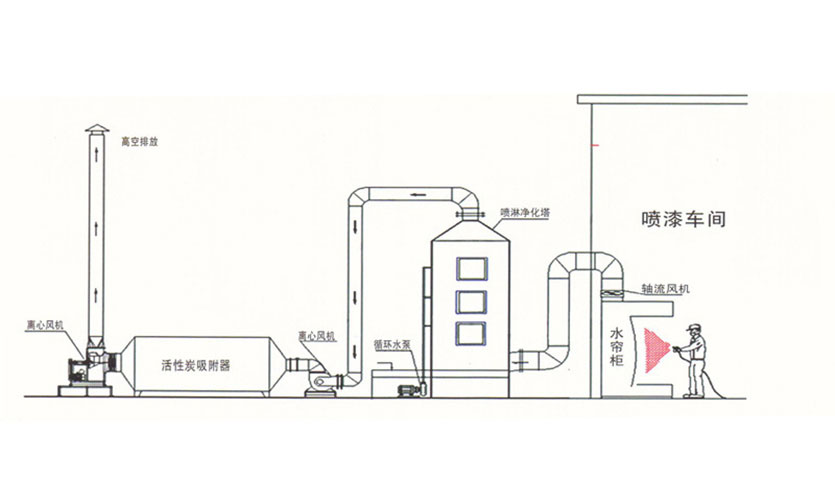
一、有機廢氣的處理方法種類很多,特點各異,常用的有水噴淋法,旋流板塔處理法、冷凝法、吸收法、燃燒法、催化法、活性吸附法等方法。 本文為您簡單介紹相關方法的對比。1、水噴淋法/旋流板...

噴漆房在噴漆工作中產生的有機廢氣主要包含苯、甲苯、二甲苯、非甲烷總烴等有機廢氣。佑泰小編為您分別介紹相關voc有機廢氣對人體及環境的危害。1、苯苯(Benzene, C6H6)在常...

噴漆房,顧名思義就是在一個房間里對要噴漆對象進行噴漆作業,也叫做噴烤漆房。噴漆房是提供涂裝作業專用環境的設備,能滿足涂裝作業對溫度、濕度、光照度、空氣潔凈度等要求,能將噴漆作業時產...

一、焊接焊錫車間的污染按不同的形成方式劃分,可以分為化學有害污染和物理有害污染兩大類。 1.1、。化學有害污染是指焊接過程中形成的焊接煙塵和有害氣體。焊接過程中高溫電弧產生有...
